フジテレビジュツの仕事
忍者に結婚は難しい
2023年1月~3月 毎週木曜日 22:00~22:54
- 美術プロデュース
- 吉田 敬
- アートコーディネーター
- 渡邊 康典
- 大道具
- 内海 靖之
- 大道具操作
- 廣瀬 隆宏
- 建具
- 岸 久雄
- 装飾
- 西村 徹
- 持道具
- アライ リエコ
- 衣裳
- 池ノ上 菜々
- ヘアメイク
- 宮沢 愛海
- 視覚効果
- 川上 勝大
- 電飾
- 寺田 豊
- アクリル装飾
- 池澤 明徳
- 小道具印刷
- 石橋 誉礼
- 植木装飾
- 後藤 健
- 生花装飾
- 牧島 美恵
- フードコーディネーター
- 山﨑 千裕
ビジュツのヒミツ①
忍び夫婦が暮らす「からくりハウス」
現代社会にも“忍んで”生活している忍者の末裔の棲家。
夫婦が暮らしているのは一見フツーのリノベーションハウスでござる。
1Fのリビングは広々としたつくり。
司馬遼太郎の著作も並ぶ書棚もお洒落です。
元の古家の雰囲気が感じられるのが庭に続く縁側。
濡れ縁もあっていい味を出しています。
ちなみにこの濡れ縁は、セットユニットを倉庫から引っ張り出して“雨汚し”のエイジング加工で仕上げました。
趣味のキャンプがきっかけで接近した二人。
庭にはキャンプセットも常備されています。
「さすがに2人で住むには広すぎるだろう」と言う勿れ。
忍者ならではの仕掛けが各所に施されているのです。第1話で
紹介されましたのでご記憶にもあるかと。例えばこの棚。
隠し扉の奥には“忍びアイテム”がズラリ。
「伊賀」の夫がしっかり継承しているのです。
2Fの寝室には隠し棚。
自らを鍛錬するための器具が揃っています。
“昔”と“今”が共存した「現代版からくり屋敷」。
演技に影響が出ては一大事ですから、美術スタッフは道具の
手入れと仕掛けのメンテナンスに余念がありません。
これは戦国の時代から受け継がれてきた教えでございます。
田楽返しで出現する的は「棒手裏剣」専用。
実はこの写真の中にはスチロールで作ったダミーも数本混ざっています。見分けられたらかなりのツワモノとお見受けする。
服の袖からサッと出すための仕掛けにはリストバンドを使いました。小道具づくりも“昔と今”のミックスで。
刺さっているように見せかけるために先端を落としたものもあります。「刃落とし」の手裏剣を使えばこんなカンジに。
時代劇でもよく使われるビジュツの技のひとつであります。
これだけ広いリビングですから、
忍者夫婦による「伊賀VS甲賀」の大立ち回りが繰り広げられても大丈夫ですね。御意!
2023年2月
ビジュツのヒミツ②
“忍び”テイストを
美術セットのあちこちに
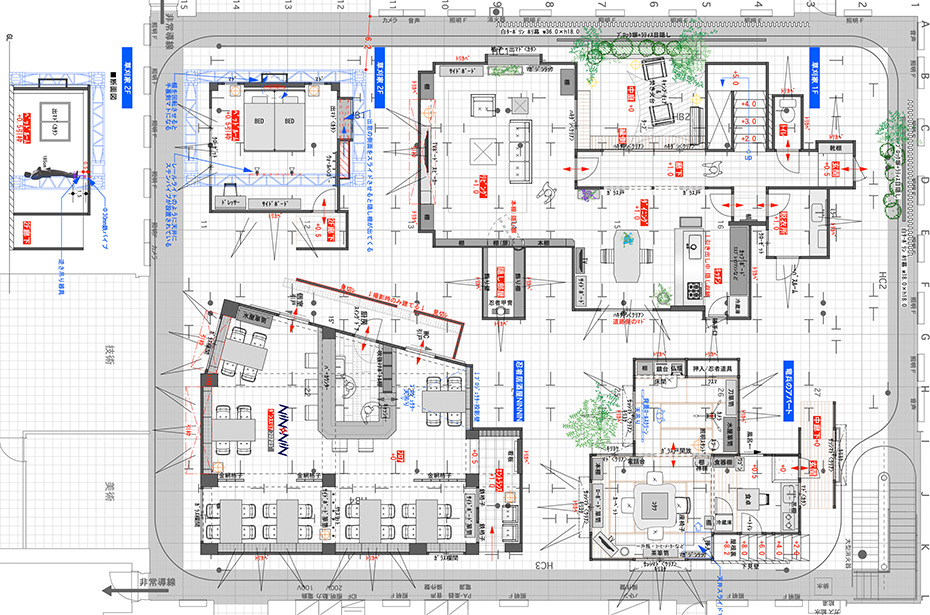
地下へ続く階段を降りると、そこは忍者ワンダーランド。
巷で流行っているという忍者居酒屋「NINNIN」には末裔たちもやってきます。「外国人がイメージする変な日本」「アジア多国籍なネオン商店」というコンセプトでデザインしました。
目を引くのがエキゾチックなネオンサイン。
リアルネオンでなく、電飾スタッフがチューブ状のLEDで
作りました。LEDなのでやろうと思えば色も変えられます。
「忍びの教え」らしき書の額縁や、忍者刀を売る店の看板など、それっぽいアイテムで飾られていますが、
正統な末裔たちには「誤解を生む間違い」が
気になってしょうがないという“それっぽさ”を意識しました。
忍者装束の店員が披露する「NINNINパフォーマンス」用に
通路が広くなっております。
壁面ではパフォーマンスを盛り上げるための映像ショーが。
そこに“とある呪文”が出てくるのをご存知ですか?
「え?唱えられる?」それはおみそれいたしました。
スタジオにはもうひとつ、
妻の父親が住む家のセットが建っています。
お酒大好きの親父が暮らす和室はアジト感満載。
末裔の姉妹もよくやって来る「甲賀」の集い場は
和骨ユニットが活躍しております。
どうやら天井裏には隠れ場所か通路があるらしい。
そういえば親父殿の登場も天井からでしたね。
妹の動画配信基地も兼ねているので配信グッズも
常備しています。もちろんリングライトもあります。
配信の人気企画「忍者解説」では、
「伊賀」と「甲賀」の基礎知識も。
イラストを使ってかわいく、わかりやすく。
このイラストはフジアールの女性デザイナーが担当。
配信数が伸びるよう頑張っておりまする。
この雑然とした部屋のあちこちに
「甲賀」の妻が使う忍びアイテムが隠されているとの情報。
正解は押入れの中。襖を開けるとそこには甲賀の紋の内扉が。
意外とハイテクな現代の忍び。まさかドローンもここに?
この隠し扉、実は引き枠に載せてあります。
中身を撮影しやすいように、まるごと引き離せる作りでござる。
「現代社会」と「忍びの世界」のマッチングは意外と楽しい。
美術スタッフ一同、街で忍者ブームが起きることを
密かに期待しています。ニンニン!
2023年2月
デザインのヒミツ
ー今回の美術セットをデザインするにあたってこだわったポイントは?
飯塚
夫婦の家である「草刈家」は、一見普通にリノベーションされた一軒家なのですが、壁や棚など実は家の色々な所が忍者仕様に改造されたカラクリ屋敷にする必要がありました。普段の生活空間は、夫婦共通の趣味であるアウトドアのテイストを散りばめた、ちょっとオシャレなインテリアなのに対して、カラクリ部分は忍者感を全面に押し出したデザインを考えて、ギャップ萌えを意識しています(笑)。特に、カラクリ仕掛けをいかに面白くセットの中に忍ばせるかということにはこだわっていたので、監督にも色々提案しながらブラッシュアップしていきました。また家の中でのアクションシーンがあるので、立ち回りしやすいスペースを、バランスを取りながら考えた空間になっています。
ー忍者居酒屋「NINNIN」のデザインについて演出からの要望などはありましたか?
「現代忍者をネオンで象徴したい」とのテーマがあり、そこからイメージを膨らませていった感じです。忍者をカジュアルに再解釈したお店なので、あえて日本以外のアジア多国籍な要素を盛り込んで、外国人がイメージする様な、ちょっと変なネオジャパネスクを目指しました。
ネオンサインのデザインが空間のイメージを左右するので、ロゴデザイン含め、かなりこだわりました。また装飾模様などにも色々なバリエーションをもたすことで、アジア多国籍な匂いを出しました。メニュー表が巻物になっているなど、細かい部分までこだわっています。
あと、「NINNIN」のネオンサインは、色を変化させられるようにリアルなネオンでなくチューブ状のLEDで作っているのですが、柔らかくてなかなか狙い通りの形にならず、試行錯誤を繰り返しました。
ー妻の父親の家はどういうイメージでデザインしましたか?
「竜兵のアパート」は、世を忍んで古いアパートに住んでいるけれども、部屋の中をよく見ると忍者の要素があふれ出ちゃっている感じを、忍びの紋や小道具などで表現しました。とにかく積み重なった生活感と経年変化による“汚し”にこだわっています。竜兵は屋根裏から登場することもあるので、屋根裏に行くためのセット裏の導線も考えてプランニングしました。
ー 美術として視聴者に見てもらいたいところは?
「現代忍者が本当にいたらこんな感じなのかな」と妄想を膨らませながらデザインを進めました。そんな妄想の楽しさを美術の中に詰め込んでいますので、画面から感じ取っていただけたら嬉しいです!
(2023年2月)





